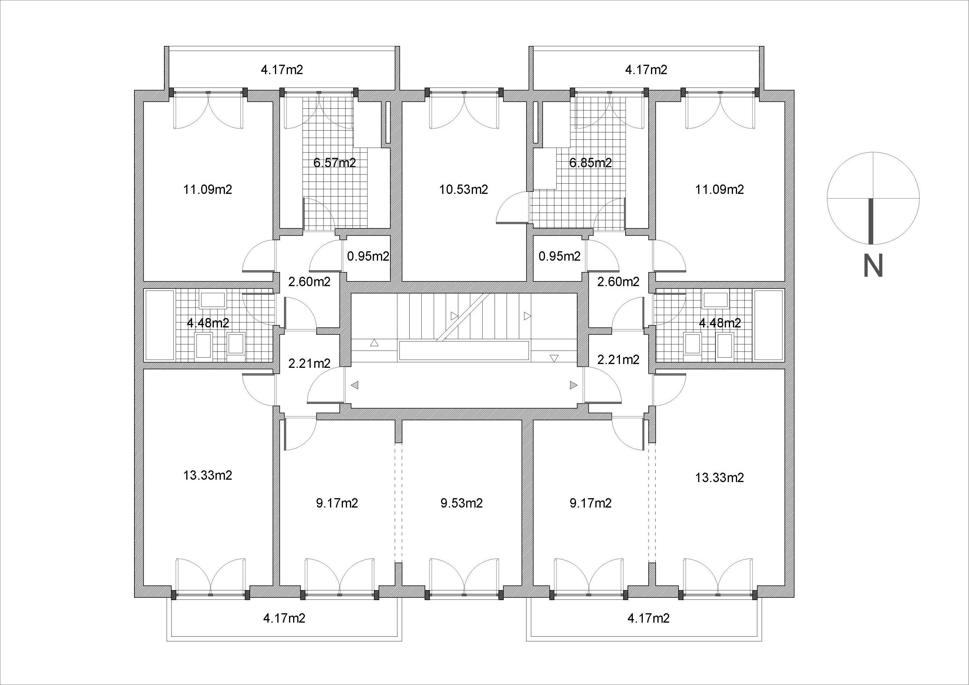
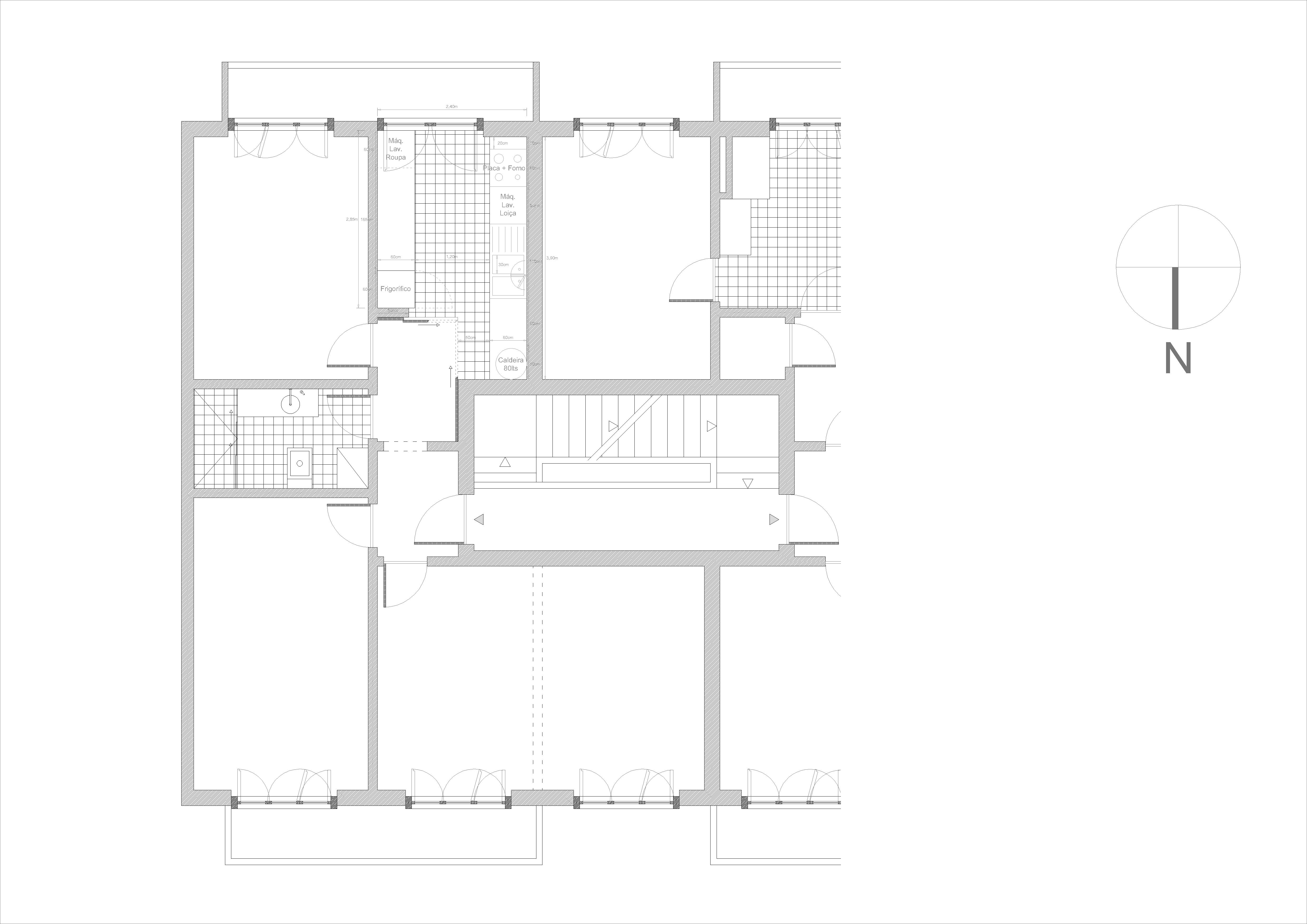
Algés Apartment - Rua da Piedade - Oeiras - Portugal (2017)